北京·中海长安源境售楼处-中海长安源境官方网站欢迎您丨2024首页必一运动官网
发布时间:2024-08-27
发布者:必一运动
浏览次数:此次,中海在长安玖章推出了纯大平层改善项目,社区共规划8栋住宅楼,2栋酒店以及包含文化、体育设施的配套建筑。住宅的容积率大约在1.8至2之间,共180套房源。整个社区只有两种户型:184平米和263平米,其中184平米户型有108套,南向面宽为13.6米;263平米户型有72套,南向面宽为18.5米。但这Bsports必一体育些户型面积尚不确定,需要等到正式的户型图发布才能确认。
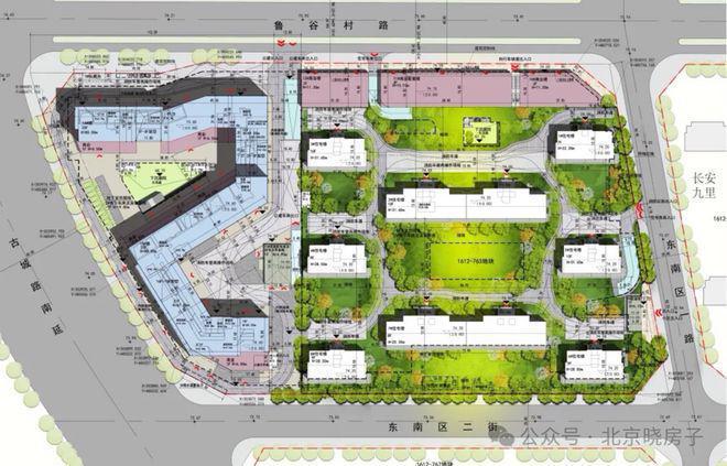
售楼处电话:【官网】由两个地块组成,本次首先推出的是830地块。从产品角度来看,长安源境主打首次改善型社区,小区采用围合式布局,中央设有大面积的景观园林,楼间距也非常宽敞。共规划7栋楼,共计334套房源,楼层数为6至18层的洋房和高层。
边厅如此大的采光面,简直就是将采光能力挖到了极致,这种巨幕视野,可以将家延伸到窗外美轮美奂的风景里!



长安源境售楼处电线地块位于长安润璟南侧,正式案名为长安源境,项目距离在建中的体育场南街站(地铁1号线地块,案名为

L型厨房,可容纳全家共同下厨,与阳台连通最大化利用厨房空间,同时厨房北向开窗,便于通风,在尽情施展厨艺的同时也能保持洁净!
,位于长安九里西侧,南边规划了一个城市公园。与地铁1号线米。尽管这三个地块打包出售,但这两个项目分别属于不同的组团。
而且各个户型在空间设计上,都预留了足够多的百变拓展空间,满足居者未来生活多变的需求!百变多功能的设计,也能提高居住空间使用率!
,LDK餐客厨一体空间约46㎡,三代同堂同在客厅也不显拥挤!南向起居室,可根据需要,改造成书房,连通阳台采光好,居家办公、孩子学习都很舒服!这个起居室还可以根据需求兼具客卧次卧/儿童房/游戏屋/女主人第二衣帽间等空间!
设计,这个户型南向客厅连通阳台设计,两个卧室是飘窗,南向三面宽约10.6米!可以带来充沛的阳光和良好观景的居住体验!
该项目是公建混合用地,因此在规划图上,三角形状的地块规划了商业办公楼,而留给居住用地的部分则是方正的地块。
社区全面采用精装修交付标准,精选科勒、方太、摩恩、博洛尼等国际一线品牌作为标配。从整体装标看,中规中矩,真没说用的特别高档,一家人过日子肯定够用。
,南北通透,南向双卧设计整体面宽约6.6米!这个户型的亮点,就是拥有一个约5.5米的阳光边厅!



763地块,案名暂定为长安玖章,位于古城南,紧邻长安街西延线,周边现有配套设施更完善,周边也都是改善型产品,目前二手房均价约为8至8.5万元/平方米。新地块的指导价为7.68万元/平方米,价格上具有显著优势。
标准户型都是南北双阳台设计,这在众多楼盘中实属罕见。此设计不仅彰显了空间的极致利用,更在实用性上达到了新高度。
而且目前中海对外报价为6.5-6.9万,甚至部分房源单价会低至6.2。目前验资100万排卡,静待开盘价出来。
阳光边厅+LDKB一体设计+南北双阳台,全家公共区域占比更大!空间利用也更加充分,无论是娱乐休闲还是观景会客都游刃有余,休憩之时还能尽情观赏室外美景,与自然近距离接触。可以承载家人美好的欢聚时光!






